Das Kuratorium des Salzburger Festspielfonds hat in der Sitzung vom 20.03.2026
 den Umfang des Projekts Festspielbezirks 2030 bestätigt

Folgende wegweisende Beschlüsse wurden getroffen:

Kultur braucht Raum!

Der Festspielbezirk bedarf einer grundlegenden Sanierung, Neuorganisation und Erweiterung, um den Herausforderungen der Zukunft entsprechen zu können.

Informiert bleiben

Alle 4–6 Wochen erhalten Sie von uns aktuelle Informationen rund um das Bauprojekt Festspielbezirk 2030 sowie Hinweise auf kommende Veranstaltungen.

Gutachten bestätigt Vereinbarkeit mit UNESCO-Welterbe

Eine unabhängige Welterbe-Verträglichkeitsprüfung (Heritage Impact Assessment) bestätigt: Die geplante Erweiterung der Festspielhäuser im Rahmen des Projekts „Festspielbezirk 2030“ ist mit den Anforderungen des UNESCO-Welterbes vereinbar.

Das Gutachten kommt zu dem Schluss, dass der außergewöhnliche universelle Wert Salzburgs durch das Vorhaben nicht beeinträchtigt wird. Die Unterlagen werden nun von der UNESCO geprüft.

1 / 6

Grenzen der Weltkulturerbestätte "Historisches Zentrum der Stadt Salzburg"

Blick von der Festung Salzburg auf den zukünftigen Festspielbezirk 2030

Umfang der neuen ober- und unterirdischen Bauarbeiten

Blick vom Kapuzinerberg auf den zukünftigen Festspielbezirk 2030

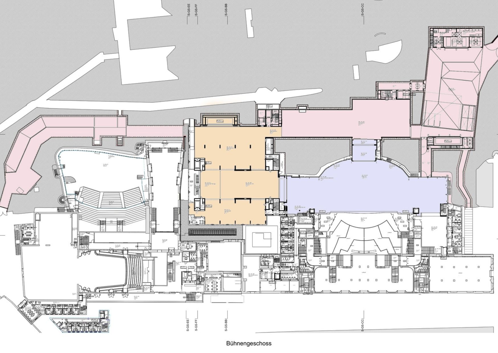
Grundriss auf Bühnenebene

Neutortunnel Blickrichtung Innenstadt

Webcam Festspielzentrum

Mit dem Projekt Festspielbezirk 2030 wird die für das Salzburger Kulturleben so zentrale Infrastruktur für die Zukunft gesichert und weiterentwickelt. Neben den Festspielen nutzt eine Vielzahl von Salzburger Kulturinstitutionen und internationalen Gastveranstaltern die drei Häuser ganzjährig als Veranstaltungsort. Für die Planung des Jahrhundertprojekts zeichnet das renommierte Architekturbüro Jabornegg & Pálffy verantwortlich.

Bereits im Februar wurde das neue Archiv in der Riedenburg als ein Ort der Begegnung mit der Festspielgeschichte eröffnet. Als Erinnerungs- und Gedächtnisort soll es zu einem lebendigen Diskurs beitragen, indem es nicht nur Kulturgeschichte bewahrt, sondern auch vermittelt und in einen gegenwartsbezogenen Dialog tritt.

Seit Herbst 2024 laufen am Herbert-von-Karajan-Platz die  Baumaßnahmen zum Festspielzentrum nach Plänen des Architekturbüros Marte.Marte, der den Bezirk um einen Begegnungsraum für Salzburgerinnen und Salzburger sowie Kulturinteressierte aus der ganzen Welt ergänzen wird.

 

Podcasts

29. Jänner 2026
Podcast: MÖNCHSBERG – Der Stadtberg als Natur-, Kultur- und Lebensraum

download mp3
  • Podcast: MÖNCHSBERG – Der Stadtberg als Natur-, Kultur- und Lebensraum
    29. Jänner 2026.

Video-Botschaften

19. Feber 2026
Salzburger Allgemeinärztinnen Dr. Maria Berger, Dr. Julia Mayer und Dr. Juliane Gruber sprechen über das Großprojekt Festspielbezirk 2030
23. Dezember 2025
Univ.-Prof. Dr. Bernhard Fügenschuh – Rektor Universität Salzburg
10. März 2025
Ralf Rangnick im Festspielbezirk – Was verbindet ein Orchester mit einer Fußballmannschaft?
7. April 2025
Christian Wieber, Obmann des Altstadtverbands Salzburg und Schlossereibesitzer
21. März 2025
Wir bauen für die Mitarbeiter:innen – Christian Müller, Technische Produktionsleitung
29. November 2024
Lukas Crepaz – Der Startschuss zum Großprojekt Festspielbezirk 2030
4. März 2025
Marcus Piso – Leitung Gebäude- und Veranstaltungsmanagement
7. Feber 2025
Hubert von Goisern – Botschafter
9. Jänner 2025
Christina König – Mitglied des Planungsteams
18. Oktober 2024
Philipp Hochmair – Botschafter
9. Oktober 2024
Eva Hody zum Denkmalschutz des Festspielbezirks
8. August 2024
Alexandra Meissnitzer – Botschafterin
25. Juni 2024
Fritz Egger – Botschafter
24. Oktober 2023
Das Projekt Festspielbezirk 2030
25. Juni 2024
Festspielzentrum Rendering
3. Oktober 2024
Kristina Hammer über das Festspielzentrum
30. August 2023
Beitrag KULTURMONTAG
14. September 2023
ORF Salzburg Beitrag Probebohrungen
31. August 2023
Probebohrungen im Festspielbezirk
Salzburger Allgemeinärztinnen Dr. Maria Berger, Dr. Julia Mayer und Dr. Juliane Gruber sprechen über das Großprojekt Festspielbezirk 2030
Univ.-Prof. Dr. Bernhard Fügenschuh – Rektor Universität Salzburg
Ralf Rangnick im Festspielbezirk – Was verbindet ein Orchester mit einer Fußballmannschaft?
Christian Wieber, Obmann des Altstadtverbands Salzburg und Schlossereibesitzer
Wir bauen für die Mitarbeiter:innen – Christian Müller, Technische Produktionsleitung
Lukas Crepaz – Der Startschuss zum Großprojekt Festspielbezirk 2030
Marcus Piso – Leitung Gebäude- und Veranstaltungsmanagement
Hubert von Goisern – Botschafter
Christina König – Mitglied des Planungsteams
Philipp Hochmair – Botschafter
Eva Hody zum Denkmalschutz des Festspielbezirks
Alexandra Meissnitzer – Botschafterin
Fritz Egger – Botschafter
Das Projekt Festspielbezirk 2030
Festspielzentrum Rendering
Kristina Hammer über das Festspielzentrum
Beitrag KULTURMONTAG
ORF Salzburg Beitrag Probebohrungen
Probebohrungen im Festspielbezirk